Seven70 Immo Agence
Télécharger la fiche

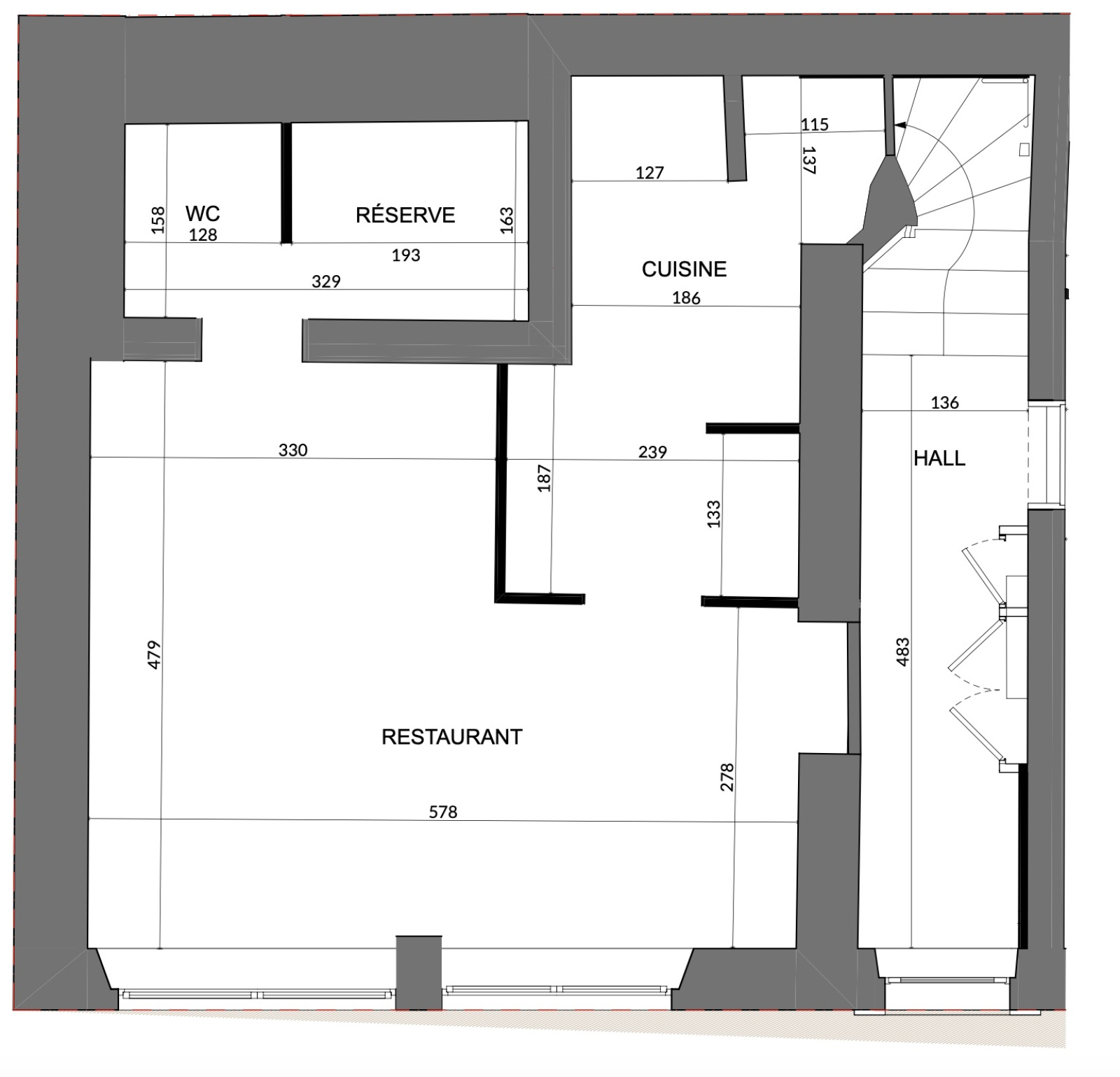
Murs commerciaux 38.7 m²

Bandol (83150)
200 000 € Référence 30

A propos de ce bien

Seven70 immo vous presente:

BANDOL CENTRE VILLE PROCHE MER, PARKING:

Un restaurant d'une surface de 38,7 m2 et sa terrasse privative, proche mer dans une rue piétonne animée, immeuble entièrement rénové (toiture, facade, ...) loué (Le fonds de commerce peut être vendu).

Rentabilité nette: 7%

Dossier complet sur demande

Caractéristiques de ce bien

Activités

  • Type de transaction Murs commerciaux

Agencement

  • Superficie m2 38,70 m²
  • Vitrine(s) 2
  • Zone(s) de chalandise Rue piétonne

Equipements

  • Chauffage individuel : autre (autre)

Secteur

  • Code postal 83150
  • Ville Bandol

Calcul des mensualités

* Champs obligatoires

Diagnostics énergétiques

Consommation énergétique
A B C D E F G
Emission de gaz à effet de serre
A B C D E F G
DPE ANCIENNE VERSION

Informations financières

Prix de vente honoraires inclus 200 000 €
Les honoraires d'agence seront intégralement à la charge du vendeur  
Dépot de garantie 5 €
Loyer 1 270 €